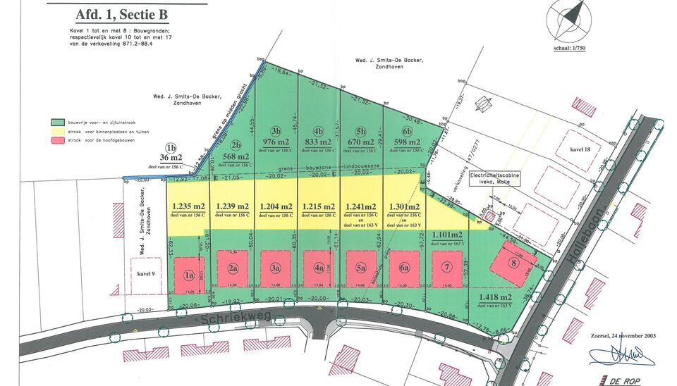
Hallebaan bouwgrond

REF: 7553856

Zandhoven

€ 289.000

  • 1.418 m²
Mooie bouwgrond net buiten de dorpskern van Zandhoven centrum en op wandelafstand van scholen en winkels. Voorschriften binnen BPA Schriekvelden: 6 meter voortuin 17 meter diepte bouwzone 3 meter zijdelingse perceelsgrens, 15.85 meter breedte bouwzone

Uw makelaar

Kristel Simkens

Kristel Simkens

Details van het pand

Financieel

Prijs
€ 289.000
Opbrengsteigendom
nee

Ligging

Ligging
Centraal

Terrein

Perceel opp.
1.418,00 m²
Tuin
nee

Energie

Indeling

Terras
nee

Stedenbouwkundige informatie

P-score
A
Schatting Blijf op de hoogte